925 16TH AVENUE NST PETERSBURG, FL 33704




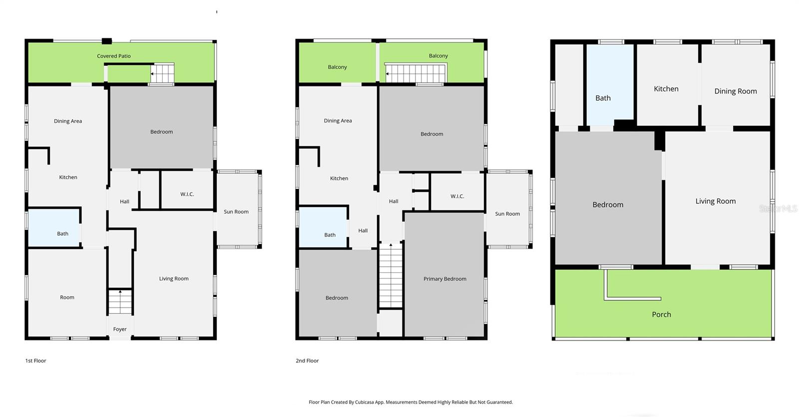
Located in the highly desirable Euclid St. Paul’s neighborhood of St. Petersburg, this recently restored triplex perfectly blends historic charm with modern updates. The property features a versatile unit mix, including two spacious 2-bedroom, 1-bathroom units (each approximately 1,131 sq. ft.) offering large rear porches, sunrooms, dining areas, and separate laundry hookups, as well as one 1-bedroom, 1-bathroom garage apartment (576 sq. ft.) with its own laundry hookup, covered porch, and a two-car garage below. The front building is constructed entirely of concrete block—including both floors and the floor system between—while the detached garage apartment is wood frame construction. Each unit enjoys abundant natural light, spacious layouts, and a tasteful combination of modern finishes and original period details. Property features include separate electric meters for each unit and one shared water/sewer/trash meter, ample parking, and inviting common spaces for tenants. Situated on a charming brick street just steps from Crescent Lake Park and only minutes to downtown St. Petersburg, this property offers the perfect opportunity for investors or those looking to live in one unit and rent out the others. A truly turnkey, income-producing property in one of St. Pete’s most sought-after neighborhoods.
| 3 hours ago | Listing updated with changes from the MLS® | |
| 16 hours ago | Listing first seen on site |
Listing information is provided by Participants of the Stellar MLS. IDX information is provided exclusively for personal, non-commercial use, and may not be used for any purpose other than to identify prospective properties consumers may be interested in purchasing. Information is deemed reliable but not guaranteed. Properties displayed may be listed or sold by various participants in the MLS Copyright 2025, Stellar MLS.
Last checked: 2025-11-14 09:36 AM EST
Did you know? You can invite friends and family to your search. They can join your search, rate and discuss listings with you.